單機除塵器以及相關的單機袋式除塵器,脈沖單機袋式除塵器是布袋除塵器中的一種.工作原理 含塵氣體進入機組后,粉塵經兩分離.

名稱:PL型扁袋式除塵器
一、概述
采用扁袋組合式結構,拆裝便捷、、體積小、過濾面積大。的機械振打裝置,了除塵效果廣泛用于車床、砂輪機、拋光機、噴塑等設備除塵。
二、產品執行標注準:
JB/9055-1999《機械振動類袋式除塵器技術條件》
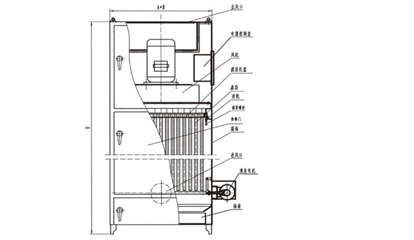
三、工作原理
含塵氣體進入箱體,經扁袋過濾器過濾,粉塵被阻擋在外表面,凈化后的氣體經風機、消聲器排出。濾袋工作一段時間后,外表面粘附的粉塵量增加,影響了除塵效果,此時開啟清灰機構工作,抖掉濾袋表面的集塵,使除塵器始終處于良好的工作狀態。落入抽屜中的粉塵定期 。
型號及性能參數

瀏覽更多關于: PL型單機除塵器 的內容
站內搜索

泊頭潤天環保科技有限公司總部
地址:河北省泊頭市馮三番工業區
電話:0317-8349891 8349892
傳真:0317-8344899
手機:18730729991
微信號:18730729991
Q Q:3544253665
聯系人:馮經理
采購指南